中核機械始終專注于提取濃縮設備、蒸發器、工藝罐體和系統模塊的設計制造。

一、適用范圍
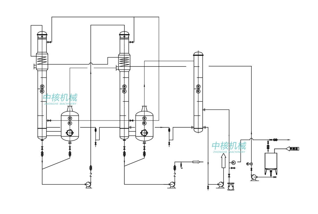
降膜蒸發器是一種高效單程非循環型膜式蒸發設備,具有傳熱效率高、傳熱系數大、溫差損失小、物料加熱時間短、不易變質、易于多效操作、能耗低、設備體積小等特點。適和牛奶、果汁、生化、制藥、調味品、食品添加劑等物料的濃縮。
二、設備組成
加熱器、分離器、冷凝器、預熱器、真空系統、電器儀表、控制柜、工作平臺等。材質SUS304或SUS316L根據物料工藝要求定。
三、設備特點
1.物料在加熱管中停留時間很短,特別適用于熱敏性物料及濃度較低不易結晶物料的蒸發濃縮??蛇B續進料,連續出料;
2.蒸發溫度較低,可根據客戶要求選擇效數和蒸發溫度;
3.降膜蒸發器是將料液自蒸發器上管箱加入,經液體分布及成膜裝置,均勻分配到各個換熱管內,在重力和真空誘導和氣流共同作用下,液體成均勻膜狀自上而下流動,流動過程中,被殼程加熱介質加熱,液體汽化,產生的蒸汽和液體共同進入蒸發器的分離室,汽液經充分分離,二次蒸汽進入下一效蒸發器作為加熱介質,從而實現多效降膜操作。
4.冷凝器結構獨特,傳熱系數大,效果好;
5.可根據客戶要求采用自控和手控兩種機型。
6.降膜蒸發溫差損失小,沒有液體靜壓引起的沸點升高,且在小溫差下仍能保證較高的傳熱系數,可在很小溫差下也能正常高效運轉,很容易實現多效操作,從而達到降低蒸汽消耗的目的。


歡迎您發送【在線留言】!您有任何關于我司產品的建議及問題,可通過641880606@qq.com給我們發郵件,也可通過此詢盤向我們反饋;我們將在24小時內給您回復。(周一至周五9:00—17:30)
更多蒸發濃縮設備產品
中核機械始終專注于提取濃縮設備、蒸發器、工藝罐體和系統模塊的設計制造。